Einen Moment bitte. Ihre Anzeigenliste wird geladen...


 

Mit dem Anzeigen der Karte akzeptieren Sie die Datenschutzerklärung von Google.

Büro-/Praxisflächen Langenzenn
Bayern, Deutschland

Anzeige 1 - 1 von 1
       

gewerbliche Anzeige
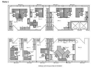
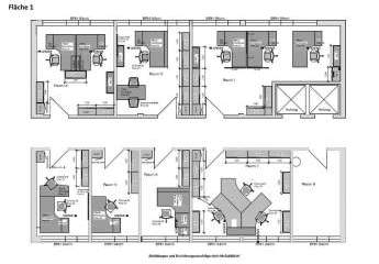
Büro & flex. Gewerbeflächen z.B. für Praxis, Kanzlei, Ausstellung, Lager, Physio - Langenzenn
370900-Vorschaubild2
370900-Vorschaubild3
370900-Vorschaubild4
8 EUR 8 EUR /m² Auf Anfrage

Büro & flex. Gewerbeflächen z.B. für Praxis, Kanzlei, Ausstellung, Lager, Physio - Langenzenn

Miete Sonstige  90579 Langenzenn
Barrierefrei
  • Gesamtfläche (ca.)
    650 m²
  • Nutzfläche (ca.)
    650 m²

 |<  <  1  >  >| 

Andere Immobilientypen in Langenzenn

Assistent für Immobiliensuche